На месцы цяпліцы ад “Зялёнага свету” на Антонава збіраюцца пабудаваць паўнавартасны будынак-аранжарэю для продажу шырокага асартыменту раслін, піша Telegram-канал Urban Hrodna.
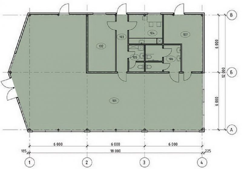
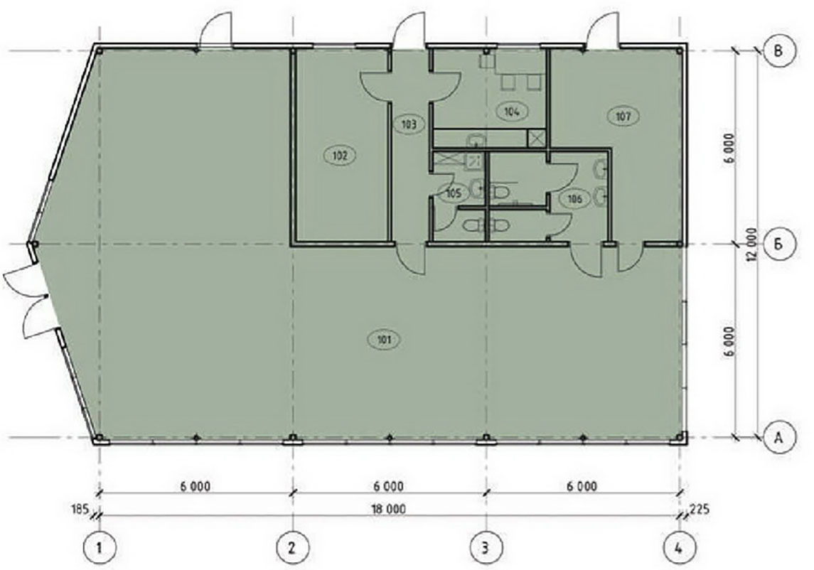
Новы будынак плануюць аднапавярховым, ламанай формы ў плане з габарытнымі памерамі 18х12 м. Агульная плошча забудовы – 233 кв. м. Існуючыя будынкі крамы зносіць не будуць. Праект прадугледжвае функцыянальнае дзяленне ўчастка ва ўвязцы з суседняй забудовай, з улікам пешаходных сувязяў і праездаў для абслугоўвання аб’екта.
Асноўную частку будынка зойме гандлёва-выставачная зала з зялёнымі раслінамі плошчай у 158 кв. м. Яна будзе ў выглядзе зашклёнай аранжарэі. У астатняй частцы размесцяць дапаможныя памяшканні: кабінет, санвузлы, камора, пакой прыёму ежы.
Каркас будынка выкананы са зборных металаканструкцый. Вонкавыя сцены і дах галоўных фасадаў з паўночнага, паўднёвага і заходняга боку будуць вітражнымі, сцены дваровага фасада – з трохслаёвай сэндвіч-панэлі з дэкаратыўнымі ўстаўкамі пад дрэва з керамаграніту з прыладай вентыляванага фасада. Дах будзе двухсхільным, без гарышча.
Асноўны пад’езд да аб’екта прадугледжаны з боку аўтамабільнай паркоўкі ўздоўж вул. Антонава. Перад галоўным уваходам запраектавана гасцявая паркоўка, адно месца выдзелена для фізічна аслабленых асобаў. Асноўны ўваход для наведвальнікаў будзе з паўночна-заходняга боку ўчастка. Ходнікі і паркоўку выкладуць пліткай, уладкуюць газоны, усталююць сметніцы і лаўкі.
Дзе і калі можна абмеркаваць праект
Грамадскія абмеркаванні праекта з гродзенцамі пройдуць з 25 чэрвеня па 19 ліпеня. Заўвагі і прапановы прымаюць з 25 чэрвеня па 9 ліпеня ў пісьмовай або электроннай форме з паметкай «грамадскае абмеркаванне»:
- Гродзенскі гарадскі выканаўчы камітэт (пл. Леніна, 2/1, 230023, г. Гродна, e-mail: [email protected]);
- Упраўленне архітэктуры і горадабудаўніцтва гарвыканкама (пл. Тызенгаўза, 3, 230023, г. Гродна, e-mail: [email protected]);
- сервіс “Электронныя звароты” на афіцыйным сайце гарвыканкама.
Праект можна будзе ўбачыць з 25 чэрвеня па 9 ліпеня ў вестыбюлі будынка ўпраўлення будаўніцтва, архітэктуры і горадабудаўніцтва гарвыканкама (8.00-13.00, 14.00-17.00 па буднях).
Прэзентацыю правядуць 6 ліпеня ў 15.00 у каб. 1 будынка упраўлення будаўніцтва, архітэктуры і горадабудаўніцтва.
Хто замоўца
“Зялёны свет” належыць фермерскай гаспадарцы “Зялёны гарызонт” у аграгарадку Рацічы пад Гроднам. У 2020 годзе гэты ўчастак выставілі на таргі, бо арандатар не заплаціў своечасова арэнду гораду, пісаў “Вячэрні Гродна”. Зямлю выкупілі ўладальнікі “Зялёнага гарызонту”. Па ўмовах таргоў там павінны былі ўзвесці будынак.
Чытайце таксама:











