На углу Горького и БЛК построят двухэтажный ресторан. Раньше там планировали многоэтажку, но жители соседних домов были против и победили в споре с чиновниками. Появился проект нового здания общественного питания. Общественные обсуждения начнутся 12 мая.
Площадь нового здания — 1403,42 кв. м, габариты — 61х17,5 м. Высота здания по проекту — 10,1 м, обратил вынимание канал Urban Hrodna. По условиям аукциона, проходившего летом 2022 года, максимальная высота здания на этом месте не должна была превышать 6 м.
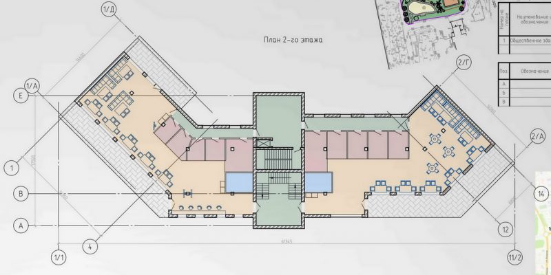
Ресторан проектируют между домами №78 на ул. Горького и №4а на БЛК.
На первом этаже будут два обеденных зала, кухня, сантехнические помещения, загрузочная группа, технические помещения. На втором этаже планируют два обеденных зала с выходом на летние террасы (эксплуатируемая кровля).
Предусмотрена безбарьерная среда. На прилегающей территории сделают детскую площадку для посетителей и горожан. Площадь участка — 0,189 га. На кадастровой карте назначение участка обозначено как строительство и обслуживание здания общественного питания.
Разработчик проекта ООО «ЭЛКО». Заказчик — ЧУП «ВТБКОМ». Основной вид деятельности компании-заказчика — сдача внаем собственной и арендованной недвижимости.
Когда общественные обсуждения
Общественные обсуждения проекта пройдут с 12 по 26 мая.
Предложения и замечания принимает:
- Гродненский горисполком (пл. Ленина, 2/1, 230023, Гродно; [email protected]),
- Управление строительства, архитектуры и градостроения (пл. Тизенгауза, 3, 230023, Гродно; [email protected]),
- можно оставить запись в журнале учета посетителей экспозиции в управлении архитектуры.
Увидеть проект можно с 12 по 26 мая (8:00-17:00, в будние дни) в вестибюле управления строительства, архитектуры и градостроения.
Презентация проекта пройдет 22 мая, 15.00 в управлении строительства, архитектуры и градостроения, на первом этаже, кабинет 1.
Раньше там хотели построить высотку — но был скандал

В октябре 2021 года жильцы дома рядом с магазином «Фиалка» добились отмены строительства высотки на этом участке. Здание было предусмотрено генеральным планом города. Землю уже успели продать.
Увидев предложенный проект, жители дома № 78 восприняли идею в штыки. На встрече с чиновниками в августе 2019 они эмоционально высказывались, что их дом рухнет, как только начнут забивать сваи, двор превратится в сплошную парковку, а деревья вырубят и насаждают вместо них прутиков. Позже выяснилось, что в этом доме с 1980 года живет семья Караников. Стройку отменили.
О том, что на этом месте появится здание общественного питания, стало известно летом 2022 года. Участок снова выставили на аукцион с начальной ценой 31,6 тыс. рублей. Дополнительно нового владельца обязывали выплатить 18 тыс. рублей гродненскому ЖКХ. По условиям продажи, на участке нужно также оборудовать детскую площадку и сохранить старые деревья.
Читайте также: Три школы, поликлиника и кинотеатр. В Гродно появится новый микрорайон на 22 тысячи человек












